You’ll Be Delighted When You See This Charming Craftsman Kitchen
A thoughtfully planned Craftsman kitchen design blends timeless craftsmanship with fresh personality, and this charming kitchen does exactly that. Warm wood cabinetry, lively botanical wallpaper, and a classic farmhouse sink create a space that feels both historic and welcoming.
The first thing that caught my eye in today’s 142-square-foot kitchen by Airy Kitchens was a pair of blush-pink bar stools that introduce an unexpected brush of soft color (along with the botanical wallpaper). Their simple silhouette keeps them from feeling too modern, while the soft pink hue lightens the palette and adds personality under the window with a custom shelf. This corner sets the vibe for the entire room.
This layout keeps the center of the kitchen open, allowing the striking checkerboard floor to become a focal point while making the room feel larger and easier to navigate. Beautiful custom cabinetry and tile are the mainstay of the kitchen renovation.
Perhaps the most eye-catching element in the kitchen is the lively botanical wallpaper above the tile backsplash. Inspired by traditional Arts and Crafts patterns, the design features winding vines, flowers, and soft colors that bring movement and personality to the room.
The backsplash uses simple square tiles in soft neutral tones, a perfect complement to the traditional Craftsman aesthetic. Behind the stove, a small decorative tile panel becomes a subtle focal point. These handcrafted-style details help reinforce the artisan feel that defines Craftsman design.
Centered beneath a large window, the farmhouse sink serves as both a practical and visual centerpiece. The deep apron-front basin feels authentic to the Craftsman style and offers plenty of room for everyday kitchen tasks. A warm brass faucet echoes the cabinet hardware and adds a hint of vintage charm.
One of the most defining features of this Craftsman kitchen is the beautiful wood cabinetry. The rich, medium-toned finish brings warmth to the room and highlights the simple, square panel doors typical of this style of design.
Brass knobs add a subtle vintage touch while keeping the cabinetry feeling refined rather than ornate. The cabinets extend all the way to the ceiling, maximizing storage while visually grounding the space.
I love the deep-set windows that allow plenty of natural light to flow into the space. Note how a row of green tiles at the top of the backsplash complement the green shade in the botanical wallpaper. The pink stools help to pull out the pink in the paper. The kitchen feels both fresh and vintage all at once.
Here’s the floor plan of the craftsman kitchen so you get a better idea of the flow and layout. The sink, stove, and refrigerator create an efficient working triangle.
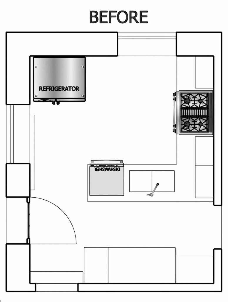
And here’s the before so you can see what was done and how the peninsula was removed to open up the room:
I hope you enjoyed today’s featured kitchen by Airy Kitchens. I love the color palette.


Nice kitchen and layout, love what they did and that wallpaper is exceptional.